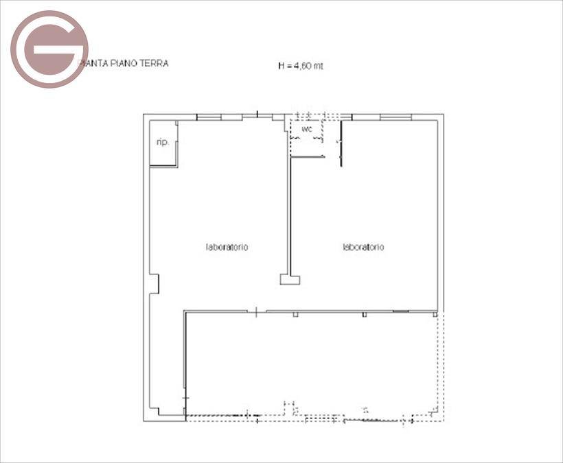
Vendesi, a Taurianova, in zona semi-centrale, un ampio locale commerciale in ottime condizioni già a reddito, situato al piano terra e distribuito su un unico livello.
Per consultare tutti i nostri annunci vai su: ...
Attiva le notifiche sulle nostre pagine social per restare aggiornato in tempo reale.
Pubblichiamo, quotidianamente, nuovi annunci.
Ci trovi su:
- Instragram: @gieffetaurianova ...
- Facebook: Agenzia Gieffe Taurianova ...
- Tik Tok: ...
- Whatsapp: 347.4885688 / 379.3117809
 
											"Gieffe Real estate" sede di Taurianova è una delle tante agenzie immobiliari aderenti al network internazionale "Gieffe Group". Di seguito tutte le nostre offerte immobiliari e i nostri contatti.
												 Ci trovi qui:
						
						V.le Prof. Ricci, 127, 00000						Taurianova (RC)
						
												Tel: click per vedere | Mail: click per vedere | Web: https://www.gieffegroup.it