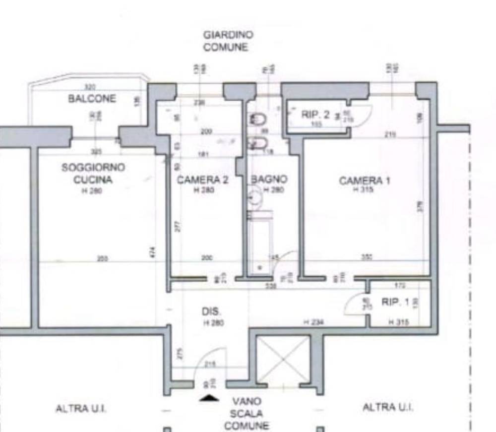
CASA COMUNE propone in vendita un elegante trilocale completamente ristrutturato con classe energetica B, situato in un condominio recentemente riqualificato ,In zona centralissima di Cinisello Balsamo, comoda per tutti i servizi, negozi e le principali vie di collegamento. L’appartamento, che gode di un ottima luminosità, si apre su un ingresso spazioso che conduce alla zona living moderna e accogliente, composta da soggiorno con cucina a vista e accesso diretto al balcone. La zona notte comprende una camera matrimoniale con bagno privato dotato di doccia , una cameretta ideale per bambini, ospiti o studio, il bagno principale con la vasca e per concludere un comodo ripostiglio. Completa la proprietà una cantina di pertinenza, utile come spazio aggiuntivo per deposito o hobby. L’immobile è stato oggetto di una ristrutturazione completa con finiture di pregio: infissi a doppio vetro , pavimentazione moderna, nuovi impianti certificati e aria condizionata caldo / freddo Lo stabile, anch’esso ristrutturato, garantisce elevata efficienza energetica. Sotto casa sono presenti i principali mezzi di trasporto pubblici, che permettono di raggiungere Milano in pochi minuti, rendendo questa soluzione perfetta anche per chi lavora o studia nel capoluogo. Una soluzione ideale per chi cerca comfort, modernità e posizione strategica, nel cuore di Cinisello Balsamo e a pochi passi da Milano.
 
											L'utente non ha inserito alcuna descizione
												 Ci trovi qui:
						
						Via Vittorio Veneto 100, 20021						Bollate (MI)
						
												Tel: click per vedere | Mail: click per vedere