Centro di Tecchiena adiacente il Parco degli Ulivi, nel "Condominio Pomella", a soli 6 minuti da Frosinone e dal casello autostradale di Ferentino.
Caratteristiche principali:
Palazzina di recente costruzione Classe energetica C
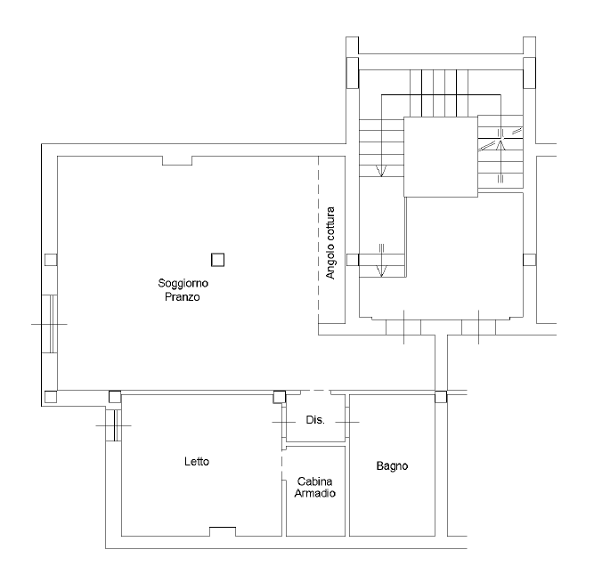
Piano quarto (mansarda) ascensore fino al terzo piano
Contesto residenziale tranquillo, adiacente a parco pubblico
Ampia zona giorno con angolo cottura
Camera matrimoniale spaziosa
Bagno con ottime finiture
Riscaldamento e raffrescamento con pompa di calore
Posto auto esclusivo in corte condominiale chiusa con barriere automatiche
Posizione ideale:
Nel cuore di Tecchiena centro, con tutti i servizi principali a pochi passi: supermercati, farmacia, scuole, fermate bus e attività commerciali.
Ottimo collegamento con Frosinone e Ferentino.
Prezzo di vendita: EURO 110.000
Le immagini con ambientazioni arredate sono state ottimizzate graficamente con A.I. a scopo illustrativo.
CLASSE ENERGETICA: C 69,37 kWh/m2 a