Annuncio inserito da:   Mondo Casa Sas

vendita - villa singola, Laigueglia (SV)

Zona: non indicata
Rif. 1042
1.500.000€
  • 120  mq
  • locali
  • C. E. A+ 
vedi sulla mappa

dettagli

Inserito: 3 mesi fa
  • interno immobile
    • Tipo: villa singola
    • Stato: non indicato
    • Superficie: 120 mq
    • Locali: 4
    • Bagni: 3
    • Tipo cucina: non indicato
    • Riscaldamento: non indicato
    • Tipo riscaldamento: non indicato
    • Clase energetica: A+
    • IPE: 0 kwh/mq annui
  • esterno immobile
    • Piano: non indicato di 3
    • Livelli: non indicato
    • Balconi: 1
    • Box: non indicato
    • Giardino: non indicato
    • Pannelli solari: non indicato
  • altre informazioni
    • Categoria: Residenziale
    • Anno construzione: non indicato
    • Tipo proprietà: non indicato
    • Stato al rogito: non indicato
    • Arredato: no
    • Spese cond./gen.: n.i. /mese
    • Permuta: non indicato
caratteristiche
  • presente
  • non presente
  • info mancanti
  • ascensore
  • terrazzo
  • condizionatore
  • zanzariere
  • cantina
  • soffitta
  • piscina interrata
  • imp. satellitare
  • cablato/lan
  • imp. allarme
  • adatto diversamente abili

descrizione

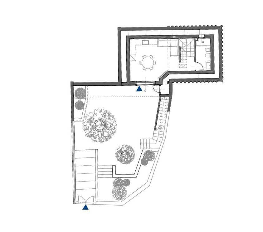
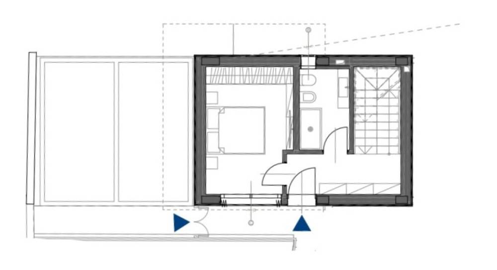
Mondo Casa propone in vendita, nel centro storico e a pochi passi dal mare, villa indipendente su tre livelli. Realizzata in struttura antisismica con l’utilizzo dei più moderni standard costruttivi ed un alto livello di comfort abitativo. Impiantistica autonoma di raffrescamento e riscaldamento canalizzata, solare termico e fotovoltaico integrati, alto isolamento termico ed acustico elevano alla massima classe energetica. La tecnologia e la natura si fondono in un progetto che guarda il futuro senza dimenticare le radici. La villa è distribuita su tre piani, offrendo una maggiore superficie abitabile ed una chiara separazione tra la zona giorno e la zona notte. La presenza di due ingressi ne aumenta il comfort e l’esclusività. Al piano terra troviamo ingresso su zona giorno con angolo cottura e bagno. La scala interna conduce al piano superiore dove abbiamo ampia camera matrimoniale e secondo bagno. Al terzo ed ultimo piano camera matrimoniale, cameretta e terzo bagno. Terrazzi e ampia corte esclusiva circondano la villa, regalando a chi la abita un angolo di relax immerso nella natura, a pochi passi dal mare. Completano la proprietà due comodi posti auto. Ottima soluzione per chi desidera indipendenza e tranquillità. Le Terrazze di Laigueglia rappresenta la nuova frontiera dell’abitare consapevole, tecnologia e design al servizio del benessere. Per maggiori informazioni contattare Sara al 339.883.5942 presso Mondo Casa di Loano, Via Aurelia 289.

vedi l'annuncio sulla mappa

Indirizzo di questo annuncio: , Laigueglia (SV)

annunci simili per te

Rif. annuncio 1042
nome agenzia

Mondo Casa Sas

contatta l'utente

L'utente non ha inserito alcuna descizione


Ci trovi qui:
Via Turati, 26, 17011 Albisola Superiore (SV)

Tel: click per vedere | Mail: click per vedere | Web: www.mondo-casa.com