Annuncio inserito da:   Sinergie Immobiliare

vendita - appartamento - Via Gisa Giani 2, Perugia

Zona: non indicata
Rif. B Int. 1
145.000€
  • 100  mq
  • locali
  • C. E. Non indicata 
vedi sulla mappa

dettagli

Inserito: 5 giorni fa
  • interno immobile
    • Tipo: appartamento
    • Stato: buono/abitabile
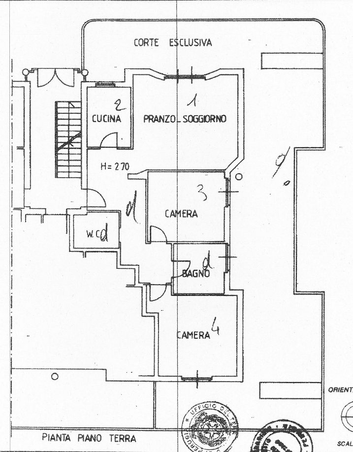
    • Superficie: 100 mq
    • Locali: 4
    • Bagni: 2
    • Tipo cucina: abitabile
    • Riscaldamento: autonomo
    • Tipo riscaldamento: a metano
    • Clase energetica: non indicato
    • IPE: 0 kwh/ annui
  • esterno immobile
    • Piano: terra / rialzato di 1
    • Livelli: 1
    • Balconi: 1
    • Box: non indicato
    • Giardino: non indicato di 88mq
    • Pannelli solari: non indicato
  • altre informazioni
    • Categoria: Residenziale
    • Anno construzione: non indicato
    • Tipo proprietà: non indicato
    • Stato al rogito: non indicato
    • Arredato: no
    • Spese cond./gen.: n.i. /anno
    • Permuta: non indicato
caratteristiche
  • presente
  • non presente
  • info mancanti
  • ascensore
  • terrazzo
  • condizionatore
  • zanzariere
  • cantina
  • soffitta
  • piscina interrata
  • imp. satellitare
  • cablato/lan
  • imp. allarme
  • adatto diversamente abili

descrizione

Perugia, zona Montelaguardia. In piccolo condominio di recente costruzione proponiamo appartamento al piano terra con giardino di proprietà di circa 100 mq. Appartamento composto da soggiorno angolo cottura. Due camere e due bagni. Inoltre giardino che circonda l'appartamento. E' dotato anche di garage più fondo al piano seminterrato. Tutto in ottime condizioni abitabile e libero da subito. Verrà installata una nuova caldaia, sarà imbiancato e rimesso tutto a nuovo. Ideale per chi cerca comfort, indipendenza e tranquillità, senza rinunciare alla vicinanza ai principali servizi e al centro di Perugia.
CLASSE ENERGETICA: In fase di valutazione

vedi l'annuncio sulla mappa

Indirizzo di questo annuncio: Via Gisa Giani 2 , Perugia

annunci simili per te

Rif. annuncio B Int. 1
nome agenzia

Sinergie Immobiliare

contatta l'utente

L'utente non ha inserito alcuna descizione


Ci trovi qui:
VIA DEL MERCATO, 11, 06129 Perugia (PG)

Tel: click per vedere | Cell: click per vedere | Mail: click per vedere | Web: www.puntocasaperugia.it