Annuncio inserito da:   DOMY ONLINE S.R.L.

vendita - appartamento - Regione Rapalline snc, Albenga (SV)

Zona: non indicata
Rif. SV181/24LU-2312-25-1600
49.438€
  • 93  mq
  • locali
  • C. E.
vedi sulla mappa

dettagli

Inserito: 1 mese fa
  • interno immobile
    • Tipo: appartamento
    • Stato: non indicato
    • Superficie: 93 mq
    • Locali: 5
    • Bagni: 1
    • Tipo cucina: non indicato
    • Riscaldamento: non indicato
    • Tipo riscaldamento: non indicato
    • Clase energetica: G
    • IPE: 0 kwh/mq annui
  • esterno immobile
    • Piano: non indicato di 1
    • Livelli: non indicato
    • Balconi: nessuno
    • Box: non indicato
    • Giardino: non indicato
    • Pannelli solari: non indicato
  • altre informazioni
    • Categoria: Residenziale
    • Anno construzione: non indicato
    • Tipo proprietà: non indicato
    • Stato al rogito: non indicato
    • Arredato: no
    • Spese cond./gen.: n.i. /mese
    • Permuta: non indicato
caratteristiche
  • presente
  • non presente
  • info mancanti
  • ascensore
  • terrazzo
  • condizionatore
  • zanzariere
  • cantina
  • soffitta
  • piscina interrata
  • imp. satellitare
  • cablato/lan
  • imp. allarme
  • adatto diversamente abili

descrizione

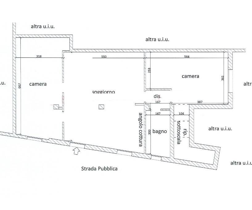
Nuda proprietà di appartamento posto al piano seminterrato, composto da soggiorno con angolo cottura, due camere, disimpegno, bagno e ripostiglio sottoscala, per una superficie commerciale complessiva di circa mq 93. L'immobile è locato con contratto ad uso ufficio stipulato il 1 gennaio 2015 per la durata di sei anni, prorogatosi il 1 gennaio 2021. - Il Prezzo visualizzato è la Base d'Asta in quanto l’immobile è oggetto di esecuzione immobiliare venduto tramite Asta Giudiziaria. - L'immobile aggiudicato, viene venduto libero e sgombro da persone cose ed ipoteche nello stato di fatto e di diritto in cui si trova. - Non rappresentiamo il Tribunale, ma lavoriamo nell'esclusivo interesse del potenziale acquirente per garantire un acquisto sicuro. - I consulenti di ASTE ITALIA ti assisteranno in tutte le attività dell'iter giudiziario dalla visita dell'immobile fino alla consegna chiavi. - Contatta il nostro Servizio Clienti , i nostri operatori sono a disposizione per chiarire i molteplici dubbi per partecipare alle ASTE.

vedi l'annuncio sulla mappa

Indirizzo di questo annuncio: Regione Rapalline snc , Albenga (SV)

annunci simili per te

Rif. annuncio SV181/24LU-2312-25-1600
nome agenzia

DOMY ONLINE S.R.L.

contatta l'utente

L'utente non ha inserito alcuna descizione


Ci trovi qui:
Via San Lorenzo 5 Int. 41, 16123 Genova (GE)

Tel: click per vedere | Mail: click per vedere | Web: www.asteitalia.online