Annuncio inserito da:   Gescom

vendita - appartamento - Via Papa Giovanni , Frontone (PU)

Zona: non indicata
Rif. A3089/25BIS
32.250€
  • 73  mq
  • locali
  • C. E. Non indicata 
vedi sulla mappa

dettagli

Inserito: 2 mesi fa
  • interno immobile
    • Tipo: appartamento
    • Stato: buono/abitabile
    • Superficie: 73 mq
    • Locali: 4
    • Bagni: 0
    • Tipo cucina: abitabile
    • Riscaldamento: autonomo
    • Tipo riscaldamento: a metano
    • Clase energetica: non indicato
    • IPE: 0 kwh/ annui
  • esterno immobile
    • Piano: 1
    • Totale Piani: Non indicato
    • Livelli: non indicato
    • Balconi: non indicato
    • Box: non indicato
    • Giardino: non indicato
    • Pannelli solari: non indicato
  • altre informazioni
    • Categoria: Residenziale
    • Anno construzione: non indicato
    • Tipo proprietà: non indicato
    • Stato al rogito: non indicato
    • Arredato: non indicato
    • Spese cond./gen.: n.i. /anno
    • Permuta: non indicato
caratteristiche
  • presente
  • non presente
  • info mancanti
  • ascensore
  • terrazzo
  • condizionatore
  • zanzariere
  • cantina
  • soffitta
  • piscina interrata
  • imp. satellitare
  • cablato/lan
  • imp. allarme
  • adatto diversamente abili

descrizione

NUOVA PROPOSTA

IMMOBILE DISPONIBILE

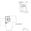
Appartamento a Frontone (PU) Via Papa Giovanni XXIII. Internamente L'unità si trova al piano primo di un edificio residenziale con ascensore, ha un'ingresso, locale soggiorno, piccola cucina, disimpegno, una camera da letto, bagno, e due terrazzi.
Questa abitazione si trova in una zona tranquilla, poco distante dalle principali vie di comunicazione locali. Piccolo locale cantina al piano seminterrato di 8 metri quadri circa.

Per te la possibilità di avere un preventivo per il mutuo a condizioni vantaggiose con i nostri partner.
Ulteriori dettagli, foto degli interni, planimetrie e altre info, se disponibili, saranno consultabili previo appuntamento nella sede di PESARO con PIETRO che inoltre ti informerà sulle possibilità di aggiudicarti questo affare.
L'immobile pubblicato al momento è sottoposto a procedura di vendita legale; Gescom srl è specializzata nella ricerca e pianificazione di investimenti immobiliari secondo innovative strategie di acquisto. Contattaci subito potrai valutare assieme a un nostro tecnico canali distinti di acquisto dell'immobile, procedura di vendita diretta senza ricorrere all'asta (d.lgs. 149/2022) e ancora stralcio immobiliare. Le informazioni sopra riportate non sostituiscono l'avviso pubblicato dal Tribunale competente ne' l'integrale gestione da parte del delegato designato. Il testo e le specifiche indicate nella presente pagina sono generate automaticamente attraverso l'utilizzo di software e/o da A. I., Gescom srl invita a verificare le formazioni e i materiali multimediali sui canali ufficiali, declinando fin d'ora ogni responsabilità su eventuali errori o incongruenze.
Gescom Italia srl leader negli stralci immobiliari e nella consulenza tecnico legale, non si occupa di attività di intermediazione imm. di cui alla legge 39/89.
Cl. energ. da verificare.
Le foto pubblicate nel presente annuncio sono indicative e non esaustive della tipologia, qualità, consistenza e indicazione geografica dell'immobile.

CLASSE ENERGETICA: A

vedi l'annuncio sulla mappa

Indirizzo di questo annuncio: Via Papa Giovanni , Frontone (PU)

annunci simili per te

Rif. annuncio A3089/25BIS
nome agenzia

L'utente non ha inserito alcuna descizione


Cell: click per vedere