Villa con azienda vitivinicola a Grazzano Badoglio (AT) Monferrato
Nel cuore del Monferrato Astigiano, a Grazzano Badoglio, proponiamo un articolato compendio immobiliare in posizione panoramica, circondato da vigneti e noccioleti. La proprietà, storica e accuratamente mantenuta, integra residenza padronale, attività ricettiva su due fabbricati, cantina con botti e reparti di stoccaggio, oltre a capannoni e locali tecnici: una soluzione ideale per chi desidera coniugare ospitalità di charme ed impresa vitivinicola con produzione media di circa 80.000 bottiglie/anno.
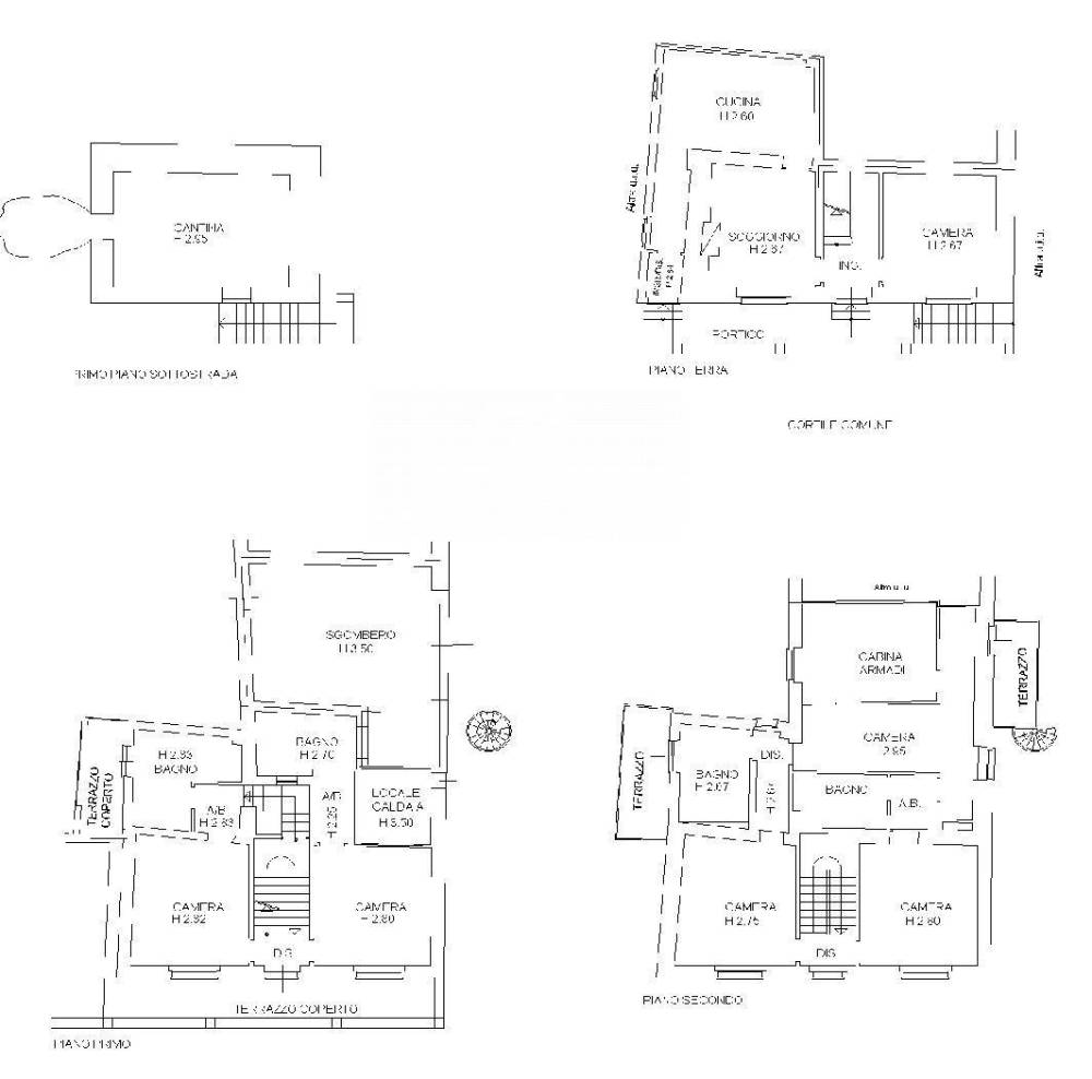
Composizione interna della struttura
Varcato il cancello, la proprietà si articola in distinti corpi funzionali, concepiti per coniugare residenza di rappresentanza, ospitalità e attività produttiva:
Corpo A Residenza padronale con B&B (2 livelli): nel primo fabbricato si trovano la residenza padronale attualmente abitata dai proprietari e, su due piani, unarea adibita a B&B con camere e servizi.
Corpo B Struttura ricettiva indipendente (2 livelli): fabbricato dedicato al B&B con camere, bagni e spazi comuni; soluzione ideale per gestire gruppi o flussi separati, preservando la privacy della parte padronale.
Cantina e reparti tecnici: locali di vinificazione, botti per affinamento, magazzini e area di stoccaggio delle bottiglie.
Spazi di servizio: capannone agricolo per mezzi e materiali, locale attrezzi (trattori e piccola meccanizzazione) e depositi.
Esterni, terreni e pertinenze
La corte interna e i terrazzamenti ospitano una piscina con aree prendisole e un giardino ideale per degustazioni ed eventi. I terreni accorpati superano i 20 ettari complessivi, così distribuiti:
ca. 11 ha di vigneto (Barbera dAsti DOCG, Grignolino dAsti DOC, Chardonnay Piemonte DOC marchi registrati);
ca. 4 ha di noccioleto;
~100 piante di olivo;
ca. 4,5 ha tra seminativi e boschi.
Completano la proprietà: box doppio (circa 40 m²), posti auto scoperti (4), balconi/terrazze con vista sulle colline e sulle Alpi nelle giornate terse. Lassetto planimetrico, con tutti i corpi funzionali contigui ai terreni, consente una gestione efficiente dellazienda e un facile passaggio tra attività produttiva e ricettiva.
Distanze e collegamenti
La location garantisce privacy e, al contempo, ottimi collegamenti stradali:
Moncalvo ~ 710 km
Asti ~ 2530 km
Casale Monferrato ~ 2530 km
Autostrada A21 (TOPCBS) accessi comodi da Asti Est/Ovest (circa 3035 min);
Torino ~ 6070 km (~1 h in auto) e Aeroporto di TorinoCaselle ~ 90 km;
Milano ~ 110130 km (in funzione del percorso A21/A7).
L'utente non ha inserito alcuna descizione
Ci trovi qui:
Corso Sempione, 44, 20100 Milano (MI)
Tel: click per vedere | Mail: click per vedere | Web: www.morabitoimmobiliare.it