Annuncio inserito da:   INTERMEDIA di Roberto Ferretti

affitto - altro - Via Provinciale Pisana 111, Livorno

Zona: Corea, Picchianti
Rif. 3499
3.800€/mese
  • 900  mq
  • locali
  • C. E.
vedi sulla mappa

dettagli

Inserito: 14 giorni fa
  • interno immobile
    • Tipo: altro
    • Stato: non indicato
    • Superficie: 900 mq
    • Locali: 4
    • Bagni: 2
    • Tipo cucina: non indicato
    • Riscaldamento: non indicato
    • Tipo riscaldamento: non indicato
    • Clase energetica: G
    • IPE: 0 kwh/mq annui
  • esterno immobile
    • Piano: non indicato di 2
    • Livelli: non indicato
    • Balconi: nessuno
    • Box: non indicato
    • Giardino: non indicato
    • Pannelli solari: non indicato
  • altre informazioni
    • Categoria: Commerciale
    • Anno construzione: non indicato
    • Arredato: no
    • Contratto: non indicato
    • Libero da: non indicato
    • Spese cond./gen.: n.i. /mese
caratteristiche
  • presente
  • non presente
  • info mancanti
  • ascensore
  • terrazzo
  • condizionatore
  • zanzariere
  • cantina
  • soffitta
  • piscina interrata
  • imp. satellitare
  • cablato/lan
  • imp. allarme
  • adatto diversamente abili
  • reception
  • parch. clienti

descrizione

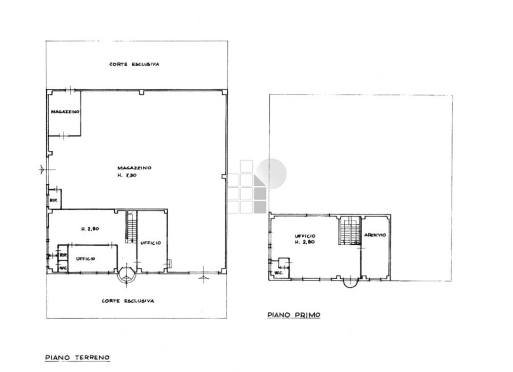
ZONA PICCHIANTI CAPANNONE IN AFFITTO Euro 3.800 mese + iva, Nei pressi dell'uscita autostradale di Livorno proponiamo la locazione di capannone di circa 750 mq di cui 450 mq ad utilizzi logistici, produttivi o magazzino e 300 mq su due piani dedicati a reception, uffici, esposizione, servizi, ecc. Offrendo un layout versatile che facilita l'organizzazione operativa, Il piano terra ha caratteristica comune in strutture di tipo industriale con allocate all'interno due ampie celle frigorifere. La zona di ricezione ed uffici propone quattro vani che permettono facilmente la suddivisione degli spazi per reparti o magazzino. Completano la proprietà la dotazione di due accessi: passo carrabile e cancello elettrico, elementi essenziali per gestione dei carichi quotidiana. Come dicevamo all'interno troviamo 300 mq di uffici integrati al capannone, oltre a due bagni e spogliatoi, una reception. É presente 'impianto di allarme, così come l'antincendio che dovrà essere adeguato alla fattispecie di attività che andrà ad occupare i locali, elementi chiave per conformità e tranquillità operativa. La luminosità è assicurata dalle ampie finestre, contribuendo a un ambiente di lavoro gradevole durante il giorno. I locali sono provvisti di 'aria condizionata autonoma, garantendo comfort termico indipendente. Le porte e portoni offrono altezza e larghezza adeguate per movimentazione di carichi di diverse dimensioni, accompagnate da un sistema di accesso controllato. Una particolare forza del patrimonio è la presenza di celle frigorifere, elemento chiave per attività che prevedono surgelazione o conservazione a temperature controllate. Completa la dotazione un piazzale di buone dimensioni collegato a tutte le aree operative, ideale per operazioni di carico-scarico, stoccaggio temporaneo e manovre di mezzi pesanti. Tutti gli elementi descritti rendono questa soluzione particolarmente adatta ad aziende che cercano flessibilità, sicurezza e efficienza, in un contesto logistico a Livorno. Contattaci per ulteriori dettagli, visitare l'immobile o fissare una visita: siamo disponibili a valutare condizioni di affitto. Disponibile dal 01/02/2026. Riferimento annuncio n. 3499

vedi l'annuncio sulla mappa

Indirizzo di questo annuncio: Via Provinciale Pisana 111 , Corea, Picchianti , Livorno

annunci simili per te

Rif. annuncio 3499
nome agenzia

INTERMEDIA di Roberto Ferretti

contatta l'utente

L'utente non ha inserito alcuna descizione


Ci trovi qui:
Via Niccolò Machiavelli, 47, 57128 Livorno (LI)

Tel: click per vedere | Mail: click per vedere | Web: www.intermediaimmobiliare.com