Annuncio inserito da:   barbara

vendita - rustico/casale - FRAZIONE STAZIONE DI ALSENO SNC, Alseno (PC)

Zona: non indicata
Rif. A12K22 17/02/2026
10.500€
  • 100  mq
  • locali
  • C. E. Non indicata 
vedi sulla mappa

dettagli

Inserito: meno di 1 giorno
  • interno immobile
    • Tipo: rustico/casale
    • Stato: da ristrutturare
    • Superficie: 100 mq
    • Locali: 3
    • Bagni: 0
    • Tipo cucina: non indicato
    • Riscaldamento: non indicato
    • Tipo riscaldamento: non indicato
    • Clase energetica: non indicato
    • IPE: 0 kwh/ annui
  • esterno immobile
    • Piano: non indicato di 2
    • Livelli: non indicato
    • Balconi: non indicato
    • Box: non indicato
    • Giardino: non indicato
    • Pannelli solari: non indicato
  • altre informazioni
    • Categoria: Residenziale
    • Anno construzione: non indicato
    • Tipo proprietà: non indicato
    • Stato al rogito: non indicato
    • Arredato: non indicato
    • Spese cond./gen.: n.i. /anno
    • Permuta: non indicato
caratteristiche
  • presente
  • non presente
  • info mancanti
  • ascensore
  • terrazzo
  • condizionatore
  • zanzariere
  • cantina
  • soffitta
  • piscina interrata
  • imp. satellitare
  • cablato/lan
  • imp. allarme
  • adatto diversamente abili

descrizione

ASTA GIUDIZIARIA.
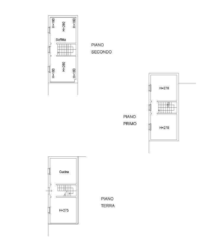
Comune di Alseno (Pc), località Stazione, via Stazione snc - Piena proprietà di porzione di casa facente parte di compendio immobiliare composto da n. 4 unità immobiliari ed area esterna. Il compendio immobiliare si trova in stato di abbandono.
Lo studio FERDENZI promuove servizi di consulenza ed assistenza specializzata a chi è interessato ad acquistare un immobile tramite asta giudiziaria. Indaghiamo in modo approfondito ogni aspetto della pratica in esame, cercando e valutando anche gli aspetti più nascosti, che possono peró influire in modo fondamentale sulle scelte del nostro cliente e sulla buona riuscita dell'operazione. Nel caso in cui il cliente decida di acquistare mettiamo a sua disposizione, durante ogni fase dell'operazione, tutto il supporto e le competenze dei nostri specialisti di settore. Ti aiutiamo a risparmiare fino al 50% sull'acquisto della casa. GARANZIA SEMPRE CON TE. Affidati allo studio tecnico immobiliare Ferdenzi ed avrai sempre al tuo fianco una persona esperta ed affidabile che saprà come affrontare le diverse criticità e che si dedicherà unicamente alla protezione dei tuoi interessi. PERCHÉ ACQUISTARE UN IMMOBILE ALL'ASTA CON NOI? Acquistare un immobile tramite asta è estremamente vantaggioso. Spesso peró le informazioni riguardanti tali beni non sono complete o aggiornate e possono indurre in errori di valutazione. Grazie alla nostra ventennale esperienza nel settore siamo in grado di acquisire informazioni utili per evitare acquisti non convenienti o poco sicuri per i nostri clienti. Il nostro intento è far spendere il meno possibile al cliente. CHIAMA SUBITO LO STUDIO PER FISSARE LA TUA CONSULENZA.
CLASSE ENERGETICA: G

vedi l'annuncio sulla mappa

Indirizzo di questo annuncio: FRAZIONE STAZIONE DI ALSENO SNC , Alseno (PC)

annunci simili per te

Rif. annuncio A12K22 17/02/2026
nome agenzia

L'utente non ha inserito alcuna descizione