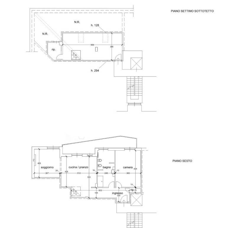
Appartamento a CARCARE via Roma 34/24, quartiere centrale, della superficie commerciale di 123,51 mq per la quota di 1/1 di piena proprietà. L'edificio è un condominio a 6 piani f.t. più sottotetto, edificato negli anni '60. L'affaccio principale è su via Roma, strada con traffico scorrevole di accesso alla zona centrale del Comune di Carcare, nei pressi della piazza principale su cui prospetta l'edificio Comunale. Il fabbricato è dotato di ascensore ed è in condizioni di manutenzione normale. - Il Prezzo visualizzato è la Base d'Asta in quanto l’immobile è oggetto di esecuzione immobiliare venduto tramite Asta Giudiziaria. - L'immobile aggiudicato, viene venduto libero e sgombro da persone cose ed ipoteche nello stato di fatto e di diritto in cui si trova. - Non rappresentiamo il Tribunale, ma lavoriamo nell'esclusivo interesse del potenziale acquirente per garantire un acquisto sicuro. - I consulenti di ASTE ITALIA ti assisteranno in tutte le attività dell'iter giudiziario dalla visita dell'immobile fino alla consegna chiavi. - Contatta il nostro Servizio Clienti , i nostri operatori sono a disposizione per chiarire i molteplici dubbi per partecipare alle ASTE.
L'utente non ha inserito alcuna descizione
Ci trovi qui:
Via San Lorenzo 5 Int. 41, 16123 Genova (GE)
Tel: click per vedere | Mail: click per vedere | Web: www.asteitalia.online