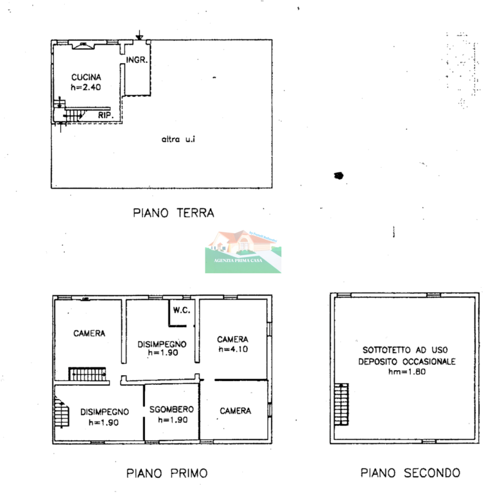
L’immobile è ubicato in zona Madonna dell’Albero ed è costituito da un casale risalente ai primi del Novecento, attualmente da ristrutturare. Il fabbricato insiste su un lotto di terreno della superficie catastale complessiva pari a 3.776 mq. La consistenza edilizia esistente, comprensiva di corpo principale e fabbricati di servizio, sviluppa una superficie complessiva pari a 826,86 mq, riferita alla costruzione attualmente presente. L’immobile si presenta in stato conservativo da ristrutturazione integrale, con necessità di interventi strutturali, impiantistici e di adeguamento normativo, in conformità alla vigente disciplina urbanistica ed edilizia.
L'utente non ha inserito alcuna descizione
Ci trovi qui:
Via Romea 147, 48121 Ravenna (RA)
Tel: click per vedere | Mail: click per vedere