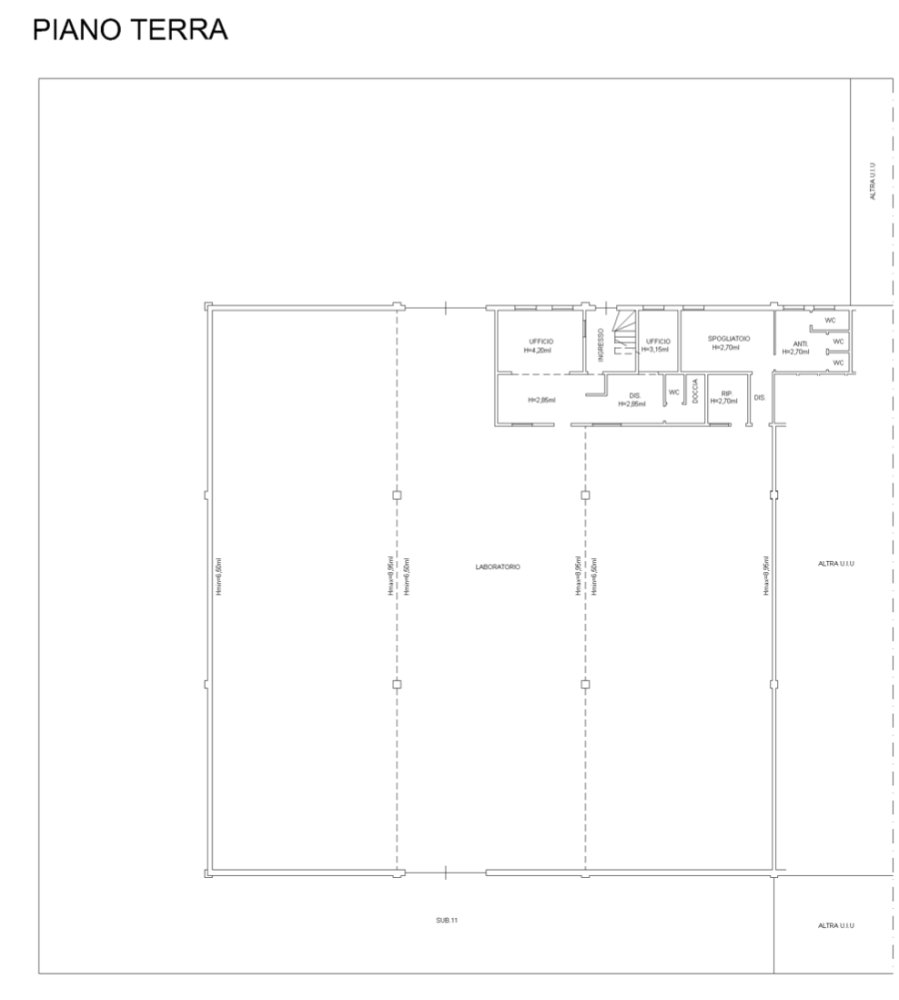
San Giorgio di Piano – Località Stiatico Capannone 980 mq con area esterna 1400 mq Proponiamo in vendita un capannone industriale di 980 mq complessivi, attualmente in fase di ristrutturazione completa, con area esterna esclusiva di 1400 mq. L'immobile presenta caratteristiche al di fuori dello standard, infatti le altezze interne partono da 6,5 metri arrivando fino a circa 9 metri massimi, tetto completamente rifatto e coibentato, cappotto termico di ampio spessore, servizi igienici nuovi ed uffici realizzati secondo le esigenze dell'acquirente, impianti nuovi ed autonomi. Gli spazi interni possono essere personalizzati in base alle esigenze dell’attività, con possibilità impianti su misura, questa soluzione si adatta per aziende di logistica, magazzino, laboratorio, produzione o attività artigianali. La posizione è strategica, comoda ai caselli autostradali di Interporto ed Altedo sulla A13, a breve distanza da Interporto e ben collegata ai principali assi stradali. Prezzo 780.000 € Rif 1700-A
L'utente non ha inserito alcuna descizione
Ci trovi qui:
Via Matteotti 122, 40018 San Pietro in Casale (BO)
Tel: click per vedere | Mail: click per vedere | Web: http://www.punto-immobiliare.com