Annuncio inserito da:   Immobiliare Romagna Srls

vendita - appartamento - Via Ferrara, Cesena (FC)

Zona: non indicata
Rif. 630
610.000€
  • 226  mq
  • -   locali
  • C. E. A+ 
vedi sulla mappa

dettagli

Inserito: 21 giorni fa
  • interno immobile
    • Tipo: appartamento
    • Stato: non indicato
    • Superficie: 226 mq
    • Locali: 0
    • Bagni: 3
    • Tipo cucina: non indicato
    • Riscaldamento: non indicato
    • Tipo riscaldamento: non indicato
    • Clase energetica: A+
    • IPE: 0 kwh/mq annui
  • esterno immobile
    • Piano: non indicato di 1
    • Livelli: non indicato
    • Balconi: nessuno
    • Box: singolo
    • Giardino: privato
    • Pannelli solari: non indicato
  • altre informazioni
    • Categoria: Residenziale
    • Anno construzione: non indicato
    • Tipo proprietà: non indicato
    • Stato al rogito: non indicato
    • Arredato: no
    • Spese cond./gen.: n.i. /mese
    • Permuta: non indicato
caratteristiche
  • presente
  • non presente
  • info mancanti
  • ascensore
  • terrazzo
  • condizionatore
  • zanzariere
  • cantina
  • soffitta
  • piscina interrata
  • imp. satellitare
  • cablato/lan
  • imp. allarme
  • adatto diversamente abili

descrizione

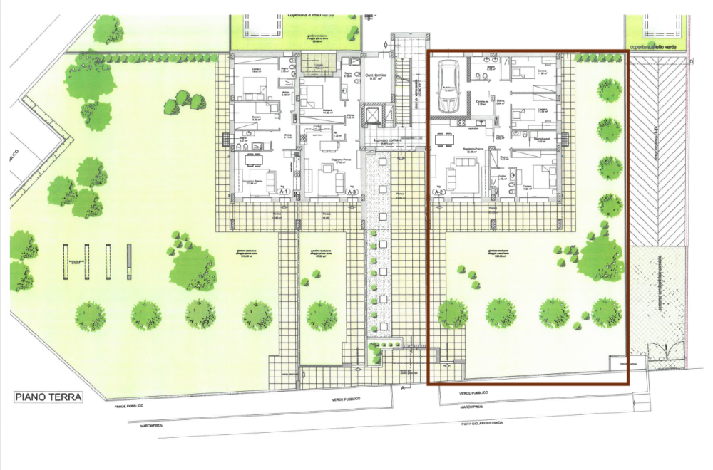
APPARTAMENTO AL PIANO TERRA IN COSTRUZIONE CON AMPIO GIARDINO – CLASSE ENERGETICA ELEVATA In zona residenziale tranquilla, proponiamo appartamento di nuova costruzione al piano terra, con ingresso indipendente e ampio giardino privato di oltre 200 mq, ideale per chi desidera comfort, privacy e spazi esterni generosi. L’immobile, attualmente in fase di costruzione, è caratterizzato da finiture moderne, soluzioni tecnologiche all’avanguardia ed elevati standard energetici ed è così composto: ✅ Ingresso indipendente ✅ Ampia zona giorno con soggiorno e cucina a vista, con accesso diretto al giardino ✅ Tre camere da letto, di cui: 1 matrimoniale e 2 singole, tutte dotate di porte-finestre con accesso diretto all’esterno ✅ Tre bagni completi, di cui uno dedicato alla camera padronale ✅ Comodo ripostiglio ✅ Autorimessa al piano terra ✅ Garage singolo al piano interrato Il giardino privato di oltre 200 mq circonda l’abitazione, offrendo spazi ideali per vivere l’esterno, creare zone relax, area pranzo o spazi verdi personalizzati. Il fabbricato sarà completato con impianti di ultima generazione, massima attenzione all’efficienza energetica e al comfort abitativo, con classe energetica di alto livello. Consegna prevista: primavera 2027 Possibilità di personalizzazione degli interni in base allo stato di avanzamento lavori Possibilità di acquistare servizi aggiuntivi, quali posti auto esterni e cantine Soluzione ideale per famiglie o per chi cerca un appartamento moderno al piano terra, con ampi spazi esterni e dotazioni complete. Contattaci per maggiori informazioni, capitolato e per fissare un appuntamento. Alina Pantiru +39 320 0525653 a.pantiru@immobiliareromagna.casa

vedi l'annuncio sulla mappa

Indirizzo di questo annuncio: Via Ferrara , Cesena (FC)

annunci simili per te

Rif. annuncio 630
nome agenzia

Immobiliare Romagna Srls

contatta l'utente

L'utente non ha inserito alcuna descizione


Ci trovi qui:
Via Della Valle 232, 47522 Cesena (FC)

Mail: click per vedere | Web: https://www.immobiliareromagna.casa