Annuncio inserito da:   Gescom

vendita - Capannone - Via Vegliato , Gemona del Friuli (UD)

Zona: non indicata
Rif. E74/26BIS
56.250€
  • 129  mq
  • locali
  • C. E. Non indicata 
vedi sulla mappa

dettagli

Inserito: 21 giorni fa
  • interno immobile
    • Tipo: Capannone
    • Stato: buono/abitabile
    • Superficie: 129 mq
    • Locali: 1
    • Bagni: 0
    • Tipo cucina: non indicato
    • Riscaldamento: autonomo
    • Tipo riscaldamento: a metano
    • Clase energetica: non indicato
    • IPE: 0 kwh/ annui
  • esterno immobile
    • Piano: terra / rialzato
    • Totale Piani: Non indicato
    • Livelli: non indicato
    • Balconi: non indicato
    • Box: non indicato
    • Giardino: non indicato
    • Pannelli solari: non indicato
  • altre informazioni
    • Categoria: Commerciale
    • Anno construzione: non indicato
    • Tipo proprietà: non indicato
    • Stato al rogito: non indicato
    • Arredato: non indicato
    • Spese cond./gen.: n.i. /anno
    • Permuta: non indicato
caratteristiche
  • presente
  • non presente
  • info mancanti
  • ascensore
  • terrazzo
  • condizionatore
  • zanzariere
  • cantina
  • soffitta
  • piscina interrata
  • imp. satellitare
  • cablato/lan
  • imp. allarme
  • adatto diversamente abili
  • reception
  • parch. clienti

descrizione

NUOVA PROPOSTA

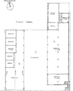
Capannone ad uso artigianale situato a Gemona del Friuli (UD), in Via Vegliato, con superficie commerciale di 129,50 mq. L'unità comprende un corpo uffici di due vani con servizio igienico, due tettoie destinate a deposito di automezzi e materiali e un'area scoperta utilizzabile come piazzale di manovra. L'accesso veicolare e pedonale avviene tramite area comune. La proprietà offre spazi funzionali e versatili, adatti a attività artigianali e di deposito.

Per te la possibilità di avere un preventivo per il mutuo a condizioni vantaggiose con i nostri partner.
Ulteriori dettagli, foto degli interni, planimetrie e altre info, se disponibili, saranno consultabili previo appuntamento nella sede di UDINE con DIANA che inoltre ti informerà sulle possibilità di aggiudicarti questo affare.
L'immobile pubblicato al momento è sottoposto a procedura di vendita legale; Gescom srl è specializzata nella ricerca e pianificazione di investimenti immobiliari secondo innovative strategie di acquisto. Contattaci subito potrai valutare assieme a un nostro tecnico canali distinti di acquisto dell'immobile, procedura di vendita diretta senza ricorrere all'asta (d.lgs. 149/2022) e ancora stralcio immobiliare. Le informazioni sopra riportate non sostituiscono l'avviso pubblicato dal Tribunale competente ne' l'integrale gestione da parte del delegato designato. Il testo e le specifiche indicate nella presente pagina sono generate automaticamente attraverso l'utilizzo di software e/o da A. I., Gescom srl invita a verificare le formazioni e i materiali multimediali sui canali ufficiali, declinando fin d'ora ogni responsabilità su eventuali errori o incongruenze.
Gescom Italia srl leader negli stralci immobiliari e nella consulenza tecnico legale, non si occupa di attività di intermediazione imm. di cui alla legge 39/89.
Cl. energ. da verificare.
Le foto pubblicate nel presente annuncio sono indicative e non esaustive della tipologia, qualità, consistenza e indicazione geografica dell'immobile.
CLASSE ENERGETICA: A

vedi l'annuncio sulla mappa

Indirizzo di questo annuncio: Via Vegliato , Gemona del Friuli (UD)

annunci simili per te

Rif. annuncio E74/26BIS
nome agenzia

L'utente non ha inserito alcuna descizione


Cell: click per vedere