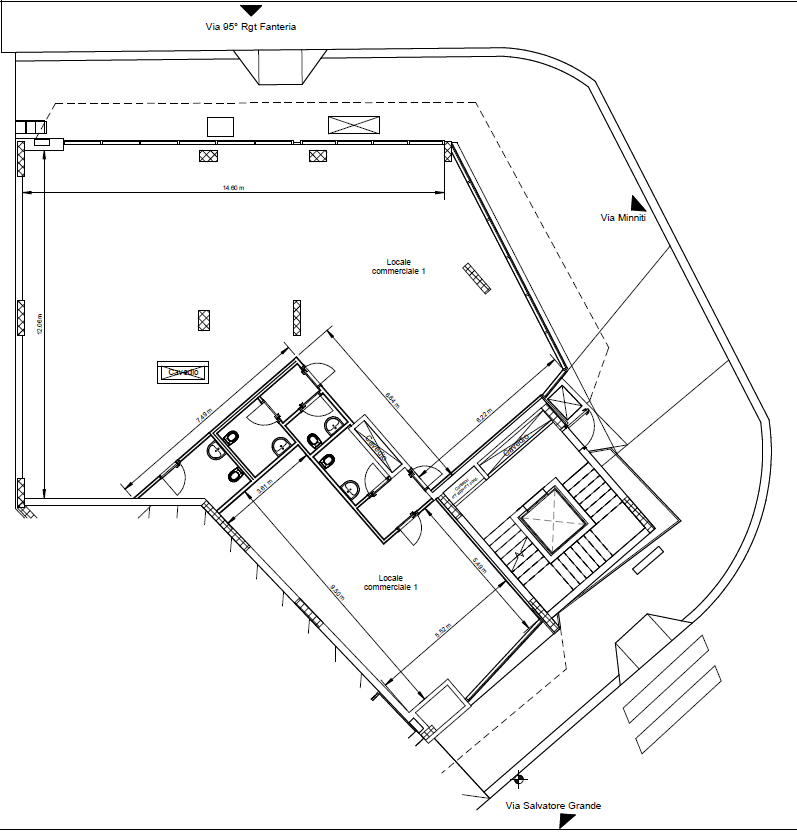
GRIMALDI STORE LECCE Vico dei Fieschi 16, 73100 Lecce All’interno di un elegante palazzo attualmente in costruzione, in via Minniti, angolo via 95° Reggimento Fanteria, in zona centrale e di forte passaggio, proponiamo in locazione ampio locale commerciale posto al piano terra, ideale per attività che necessitano di elevata visibilità e spazi generosi. L’immobile si sviluppa su una superficie di circa 250 mq, con ambienti ampi e facilmente modulabili, che consentono una distribuzione interna flessibile in base alle specifiche esigenze dell’attività. La posizione angolare garantisce un’ottima esposizione e una buona luminosità naturale, rendendo il locale particolarmente adatto a showroom, studi professionali, attività commerciali o servizi al pubblico. Inserito in un contesto urbano in fase di sviluppo e valorizzazione, il locale rappresenta una soluzione strategica per chi desidera programmare l’avvio della propria attività in una zona ben collegata e ad alto potenziale commerciale. GRIMALDI STORE LECCE 0832 1902429 / 393 9035134 info@grimaldistorelecce.it
L'utente non ha inserito alcuna descizione
Ci trovi qui:
Via Vico dei Fieschi 16, 73100 Lecce (LE)
Tel: click per vedere | Mail: click per vedere | Web: https://www.grimaldistorelecce.it