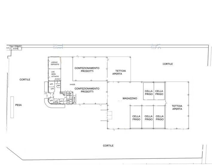
Piena proprietà di fabbricati per attivita’ agricole [D10] e opifici (D1) siti in Castelnuovo Scrivia (AL), strada Molino n.36 (in realtà strada prov. per Molino de'Torti n.36). Beni composti da un edificio principale con un locale "utente" ed una “Cabina ENEL”, capannone di mq. complessivi 5.536 oltre a cortile pertinenziale cintato e cabina enel. - Il Prezzo visualizzato è la Base d'Asta in quanto l’immobile è oggetto di esecuzione immobiliare venduto tramite Asta Giudiziaria. - L'immobile aggiudicato, viene venduto libero e sgombro da persone cose ed ipoteche nello stato di fatto e di diritto in cui si trova. - Non rappresentiamo il Tribunale, ma lavoriamo nell'esclusivo interesse del potenziale acquirente per garantire un acquisto sicuro. - I consulenti di ASTE ITALIA ti assisteranno in tutte le attività dell'iter giudiziario dalla visita dell'immobile fino alla consegna chiavi. - Contatta il nostro Servizio Clienti , i nostri operatori sono a disposizione per chiarire i molteplici dubbi per partecipare alle ASTE.
L'utente non ha inserito alcuna descizione
Ci trovi qui:
Via San Lorenzo 5 Int. 41, 16123 Genova (GE)
Tel: click per vedere | Mail: click per vedere | Web: www.asteitalia.online