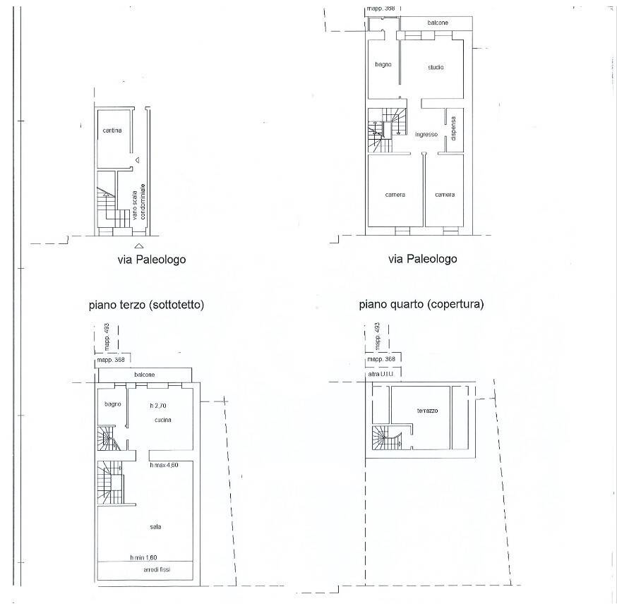
Appartamento ad ALTARE Via Paleologo 54, della superficie commerciale di 198,54 mq per la quota di 1/1 di piena proprietà. L’unità immobiliare si sviluppa come segue: - piano terra, avente altezza interna variabile da mt. 2,00 a mt. 2,83 circa, composto da n° 1 locale ad uso cantina; all’atto del sopralluogo si è rilevato l’accesso ad un locale sottoscala non autorizzato. - piano secondo, avente altezza interna pari a mt. 2,71 circa, composto da disimpegno, n° 3 camere, ripostiglio, bagno, balcone e scala di accesso al piano superiore; - piano terzo, avente altezza interna variabile, composto da soggiorno, cucina, bagno e scala di accesso al terrazzo ubicato al piano quarto; - piano quarto composto da terrazzo/lastrico solare e n° 2 ripostigli. Gli impianti risultano parzialmente realizzati ed all’atto del sopralluogo risultavano non funzionanti. I piani secondo e terzo risultano collegati con scala in legno e ferro, mentre il piano terzo risulta collegato con il piano quarto a mezzo di scala a chiocciola in legno e struttura metallica di sostegno. In generale le condizioni di manutenzione e conservazione e i caratteri di finitura interni dell’unità immobiliare risultano normali. - Il Prezzo visualizzato è la Base d'Asta in quanto l’immobile è oggetto di esecuzione immobiliare venduto tramite Asta Giudiziaria. - L'immobile aggiudicato, viene venduto libero e sgombro da persone cose ed ipoteche nello stato di fatto e di diritto in cui si trova. - Non rappresentiamo il Tribunale, ma lavoriamo nell'esclusivo interesse del potenziale acquirente per garantire un acquisto sicuro. - I consulenti di ASTE ITALIA ti assisteranno in tutte le attività dell'iter giudiziario dalla visita dell'immobile fino alla consegna chiavi. - Contatta il nostro Servizio Clienti , i nostri operatori sono a disposizione per chiarire i molteplici dubbi per partecipare alle ASTE.
L'utente non ha inserito alcuna descizione
Ci trovi qui:
Via San Lorenzo 5 Int. 41, 16123 Genova (GE)
Tel: click per vedere | Mail: click per vedere | Web: www.asteitalia.online