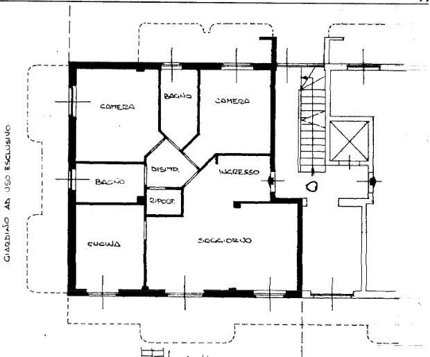
Piena proprietà 1/1. Trattasi di immobili siti in fabbricato a regime condominiale, con accesso da Via Circonvallazione Ovest 55 e Via Noce n. 9. Nel dettaglio: alloggio al piano terra, composto da ingresso, soggiorno, ripostiglio, disimpegno, cucina, due camere, due bagni e giardino a due lati ad uso esclusivo di mq 250 con cantina al piano primo interrato; garage al piano primo interrato, n. due posti auto al piano terra. - Il Prezzo visualizzato è la Base d'Asta in quanto l’immobile è oggetto di esecuzione immobiliare venduto tramite Asta Giudiziaria. - L'immobile aggiudicato, viene venduto libero e sgombro da persone cose ed ipoteche nello stato di fatto e di diritto in cui si trova. - Non rappresentiamo il Tribunale, ma lavoriamo nell'esclusivo interesse del potenziale acquirente per garantire un acquisto sicuro. - I consulenti di ASTE ITALIA ti assisteranno in tutte le attività dell'iter giudiziario dalla visita dell'immobile fino alla consegna chiavi. - Contatta il nostro Servizio Clienti , i nostri operatori sono a disposizione per chiarire i molteplici dubbi per partecipare alle ASTE.
L'utente non ha inserito alcuna descizione
Ci trovi qui:
Via San Lorenzo 5 Int. 41, 16123 Genova (GE)
Tel: click per vedere | Mail: click per vedere | Web: www.asteitalia.online