Annuncio inserito da:   Gescom

vendita - villa singola - Via Colle Caldara , Velletri (RM)

Zona: non indicata
Rif. P311/26
79.875€
  • 153  mq
  • locali
  • C. E. Non indicata 
vedi sulla mappa

dettagli

Inserito: meno di 1 giorno
  • interno immobile
    • Tipo: villa singola
    • Stato: buono/abitabile
    • Superficie: 153 mq
    • Locali: 1
    • Bagni: 4
    • Tipo cucina: abitabile
    • Riscaldamento: autonomo
    • Tipo riscaldamento: a metano
    • Clase energetica: non indicato
    • IPE: 0 kwh/ annui
  • esterno immobile
    • Piano: terra / rialzato
    • Totale Piani: Non indicato
    • Livelli: non indicato
    • Balconi: 1
    • Box: non indicato
    • Giardino: non indicato
    • Pannelli solari: non indicato
  • altre informazioni
    • Categoria: Residenziale
    • Anno construzione: non indicato
    • Tipo proprietà: non indicato
    • Stato al rogito: non indicato
    • Arredato: non indicato
    • Spese cond./gen.: n.i. /anno
    • Permuta: non indicato
caratteristiche
  • presente
  • non presente
  • info mancanti
  • ascensore
  • terrazzo
  • condizionatore
  • zanzariere
  • cantina
  • soffitta
  • piscina interrata
  • imp. satellitare
  • cablato/lan
  • imp. allarme
  • adatto diversamente abili

descrizione

NUOVA PROPOSTA

IMMOBILE DISPONIBILE

L'immobile si trova nel comune di Velletri (RM) in via Colle Caldara.
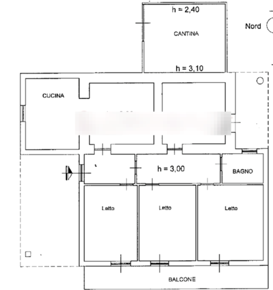
Trattasi di una villa di 11 vani composta da:
-piano terra con due ingressi, un soggiorno/pranzo/angolo cottura, un soggiorno, una cucina, due bagni, due ripostigli, due disimpegni e tre camere da letto;
-piano seminterrato composto da angolo cottura, due bagni e due cantine;
-balcone di 15,00 mq;
-due porticati per un totale di 31,95 mq;
-corte esclusiva/giardino per un totale di 1.140,00 mq.
L'immobile è situato in una zona molto tranquilla, permette di godere di tutti i comfort e i servizi offerti dalla zona circostante.

Per te la possibilità di avere un preventivo per il mutuo a condizioni vantaggiose con i nostri partner.
Ulteriori dettagli, foto degli interni, planimetrie e altre info, se disponibili, saranno consultabili previo appuntamento nella sede di ROMA con CHRISTIAN che inoltre ti informerà sulle possibilità di aggiudicarti questo affare.
L'immobile pubblicato al momento è sottoposto a procedura di vendita legale; Gescom srl è specializzata nella ricerca e pianificazione di investimenti immobiliari secondo innovative strategie di acquisto. Contattaci subito potrai valutare assieme a un nostro tecnico canali distinti di acquisto dell'immobile, procedura di vendita diretta senza ricorrere all'asta (d.lgs. 149/2022) e ancora stralcio immobiliare. Le informazioni sopra riportate non sostituiscono l'avviso pubblicato dal Tribunale competente ne' l'integrale gestione da parte del delegato designato. Il testo e le specifiche indicate nella presente pagina sono generate automaticamente attraverso l'utilizzo di software e/o da A. I., Gescom srl invita a verificare le formazioni e i materiali multimediali sui canali ufficiali, declinando fin d'ora ogni responsabilità su eventuali errori o incongruenze.
Gescom Italia srl leader negli stralci immobiliari e nella consulenza tecnico legale, non si occupa di attività di intermediazione imm. di cui alla legge 39/89.
Cl. energ. da verificare.
Le foto pubblicate nel presente annuncio sono indicative e non esaustive della tipologia, qualità, consistenza e indicazione geografica dell'immobile.


CLASSE ENERGETICA: A

vedi l'annuncio sulla mappa

Indirizzo di questo annuncio: Via Colle Caldara , Velletri (RM)

annunci simili per te

Rif. annuncio P311/26
nome agenzia

L'utente non ha inserito alcuna descizione


Cell: click per vedere