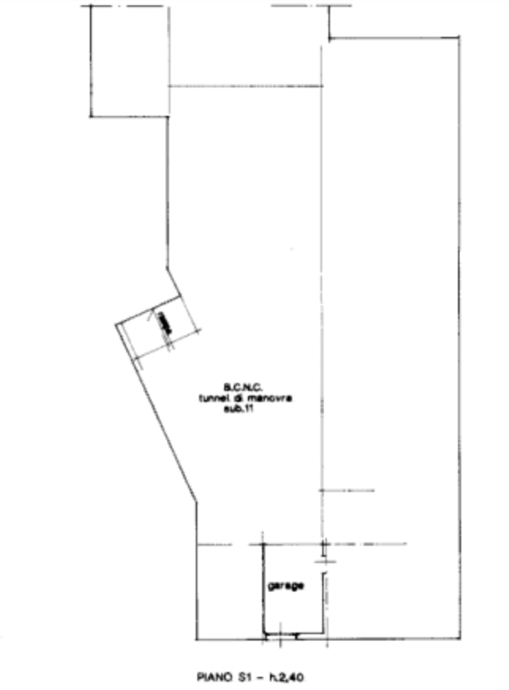
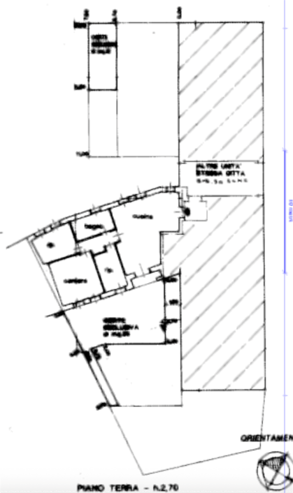
Appartamento al piano terra con annesse cantina al piano interrato e corti scoperte esclusive di complessivi mq. 48, pertinenziale garage al piano interrato e posto auto, il tutto situato a Sernaglia della Battaglia (TV) in via Castello. Abitazione composta da un ingresso, una cucina-soggiorno, corridoio del reparto notte con camera matrimoniale e due camerette ed un bagno.
Stato di occupazione: Immobile libero.
22REB è a disposizione per valutare come la nostra esperienza potrà favorirti nel realizzare il tuo miglior investimento.
L'immobile è oggetto di vendita giudiziaria.
22REB non si occupa di attività di intermediazione imm. di cui alla legge 39/89. Per motivi di privacy la foto dell'immobile/terreno è indicativa ma non esaustiva.
CLASSE ENERGETICA: In fase di valutazione
Il nostro obiettivo è quello di fornire un servizio completo e di alta qualità ai nostri clienti, guidandoli passo dopo passo nel processo di investimento immobiliare attraverso aste giudiziarie. Collaboriamo con esperti del settore e professionisti qualificati per garantire ai nostri clienti la massima trasparenza e sicurezza nelle transazioni. Grazie alla nostra esperienza nel settore e alla nostra presenza internazionale, in particolare il mercato europeo (Spagna e Italia in primo piano) siamo in grado di identificare le migliori opportunità di investimento immobiliare e di guidare i nostri clienti nella scelta dell'immobile più adatto alle loro esigenze e obiettivi finanziari. Siamo fiduciosi che la nostra presenza sul mercato europeo delle aste giudiziarie porterà nuove opportunità di investimento a privati e investitori professionisti, consentendo loro di accedere a immobili di qualità a prezzi vantaggiosi e di ottenere rendimenti interessanti sui loro investimenti.
Tel: click per vedere | Mail: click per vedere | Web: WWW.22REB.COM