Annuncio inserito da:   Gabetti Elba

vendita - villa singola, Campo nell'Elba (LI)

Zona: non indicata
Rif. 4498
700.000€
  • 100  mq
  • locali
  • C. E.
vedi sulla mappa

dettagli

Inserito: 4 anni e 6 mesi fa
  • interno immobile
    • Tipo: villa singola
    • Stato: ristrutturato
    • Superficie: 100 mq
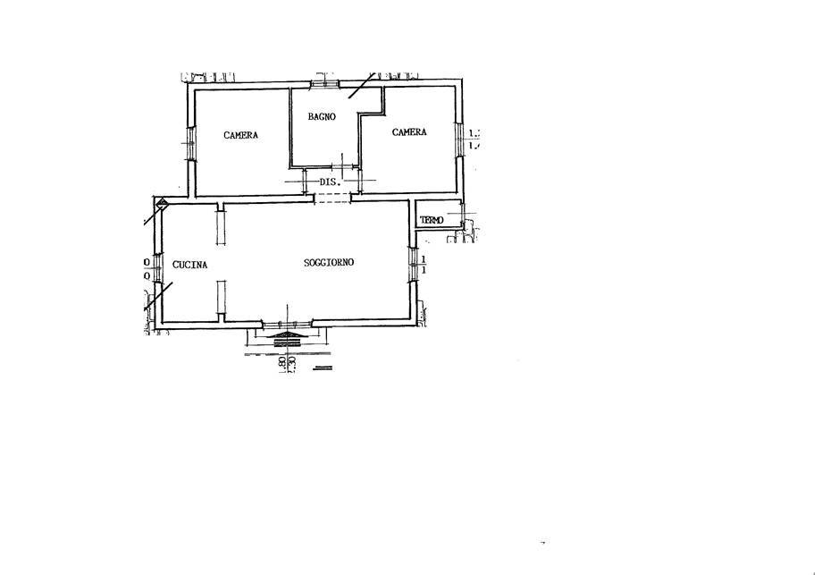
    • Locali: 6
    • Bagni: 2
    • Tipo cucina: non indicato
    • Riscaldamento: non indicato
    • Tipo riscaldamento: non indicato
    • Clase energetica: G
    • IPE: 583 kwh/mq annui
  • esterno immobile
    • Piano: non indicato
    • Totale Piani: Non indicato
    • Livelli: non indicato
    • Balconi: non indicato
    • Box: box e posto auto
    • Giardino: non indicato di 1500mq
    • Pannelli solari: non indicato
  • altre informazioni
    • Categoria: Residenziale
    • Anno construzione: non indicato
    • Tipo proprietà: non indicato
    • Stato al rogito: non indicato
    • Arredato: non indicato
    • Spese cond./gen.: n.i.
    • Permuta: non indicato
caratteristiche
  • presente
  • non presente
  • info mancanti
  • ascensore
  • terrazzo
  • condizionatore
  • zanzariere
  • cantina
  • soffitta
  • piscina interrata
  • imp. satellitare
  • cablato/lan
  • imp. allarme
  • adatto diversamente abili

descrizione

CAMPO NELL'ELBA - RIF. 4498
FANTASTICA VILLA SINGOLA IMMERSA NELLE COLLINE CON VISTA SU UN PICCOLO SCORCIO DI MARE. DISPONE DI UN VASTO GIARDINO CON PIANTE ORNAMENTALI CON POSSIBILE REALIZZAZIONE DI PISCINA. NELLA PARTE RETROSTANTE SI TROVA UNA VASTA VARIETÁ DI PIANTE DI ULIVI BEN TENUTI.
L'IMMOBILE HA UN DOPPIO INGRESSO CON CANCELLI ELETTRICI, NUMEROSI POSTI AUTO, DEPENDANCE, GARAGE E LAVANDERIA. INTERNAMENTE É COMPOSTA DA AMPIO SOGGIORNO, CUCINA, AMPIO BAGNO, CAMERA DA LETTO E CAMERA MATRIMONIALE CON BAGNO, SUL RETRO DELLA VILLA SI TROVA UN SALOTTINO MOLTO RILASSANTE.
L'IMMOBILE É IN OTTIMO STATO ED É RIFINITO CON MOLTE FINITURE IN GRANITO.
Classe Energetica G/IPE 583,34 kwh/mq annuo
Euro 700.000,00

vedi l'annuncio sulla mappa

Indirizzo di questo annuncio: , Campo nell'Elba (LI)

annunci simili per te

Rif. annuncio 4498
nome agenzia

Gabetti Elba

contatta l'utente

Agenzia del gruppo Gabetti che opera su tutto il territorio elbano.


Ci trovi qui:
Via Rodolfo Manganaro, 7/D, 57037 Portoferraio (LI)

Tel: click per vedere | Mail: click per vedere | Web: https://www.gabettielba.it/